Продажа 3-комнатной квартиры 80 м², 23 / 27 этаж
Россия, Киров, Октябрьский проспект, 117 Центр

24.04.2020

4 900 000,0 ₽
61 250 ₽ за м²
Свободная продажа
Описание
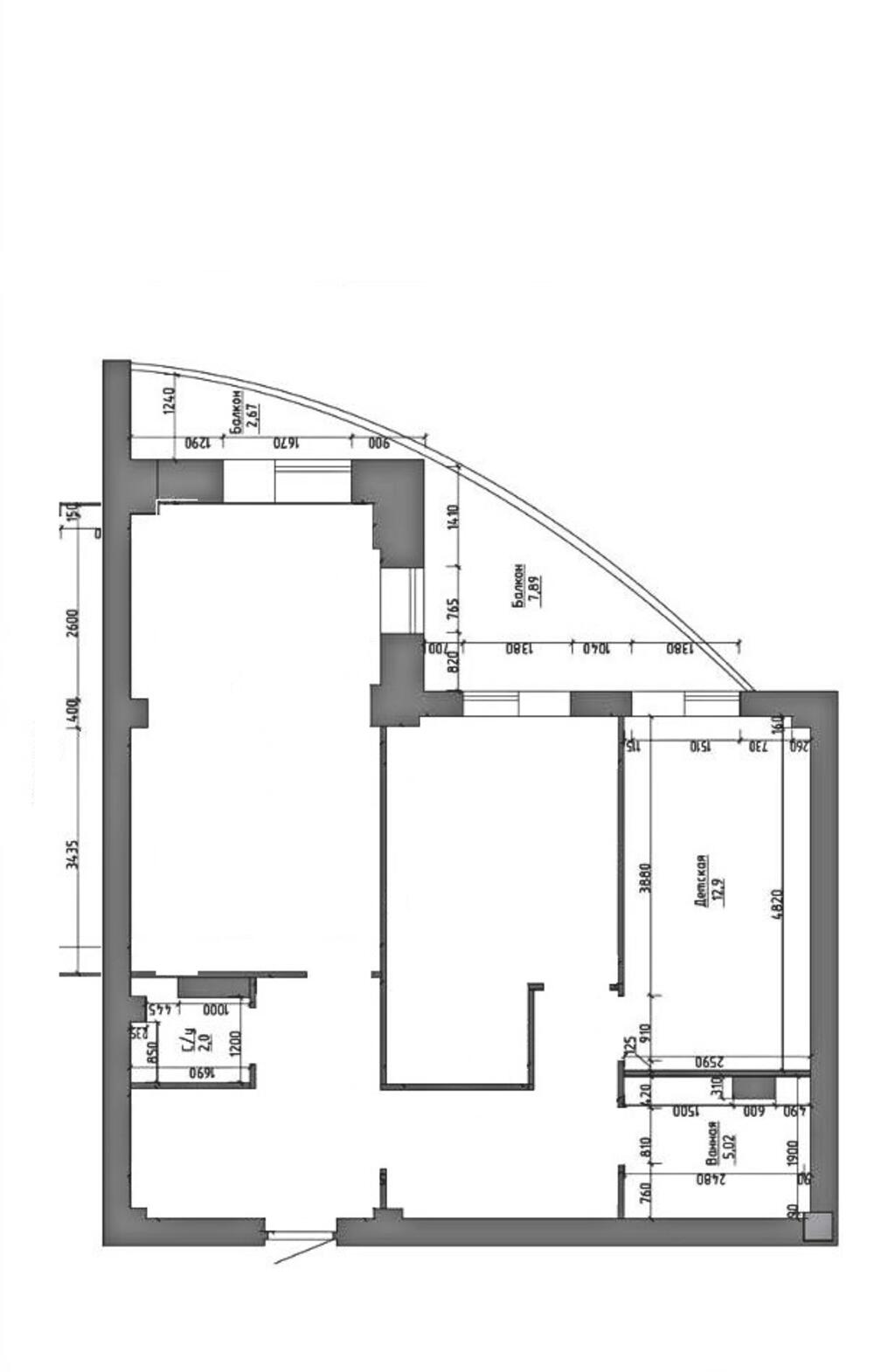
Общая площадь — 80 м²
Площадь кухни — 25 м²
Комнат — 3
Этаж — 23 из 27
Ремонт — Черновая отделка
Санузел — Более одного
Вид из окон — Во двор
Лоджия
Жилой фонд
О доме
Год постройки — 2018
Высота потолков — 28
кирпич-монолит
Парковка — Подземная
Продаётся видовая квартира формата Евро3 в ЖК "Алые паруса" рядом с Театральной плащадью. - Дом премиум-класса в центре города с подземной автостоянкой, детской площадкой, благоустроенным парком и хорошей транспортной доступностью. - Шикакрный вид на юго-западную часть города. - Удачная планировка: кухня-гостиная 24 м2, две отдельные комнаты 15 + 13 м2, две лоджии с панорамным остеклением, одна из которых 9 м2 - летняя терраса, две гардеробные - мечта хозяйки! - Черновая отделка. Выполнены стяжка, электроразводка. В подарок дизайн проект. - Документы готовы, чистая продажа.
Расположение