Продажа 2-комнатной квартиры 43.2 м², 1 / 2 этаж
Киров, улица Шорина, 18 Филейка

12.08.2024

2 200 000,0 ₽
50 926 ₽ за м²
Возможен торг Возможна ипотека Свободная продажа
Описание
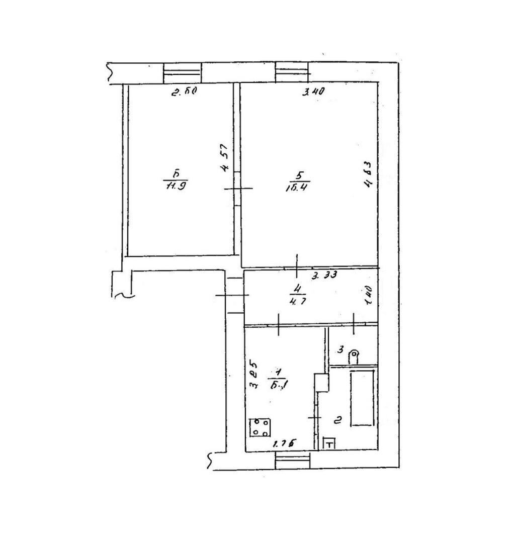
Общая площадь — 43.2 м²
Площадь кухни — 6.1 м²
Площадь жилая — 28 м²
Комнат — 2
Этаж — 1 из 2
Ремонт — Косметический
Санузел — Раздельный
Вид из окон — Во двор
Жилой фонд
О доме
блочный
Парковка — Открытая
КВАРТИРА С РЕМОНТОМ ! РЯДОМ ШКОЛА И САДИК ! Продается 2-комнатная квартира в теплом кирпичном доме. - Две комнаты 16.4 + 11.9 м2, кухня 6.1 м2, раздельный санузел. - Состояние хорошее, можно заехать и жить. В большой комнате недавно сделан качественный ремонт, всё поменяли, красивые обои, стены выровнены, пластиковые окна, натяжной потолок. - Есть подполье. - Дом удачно расположен. В двух минутах Октябрьский проспект, можно уехать в любую часть города. Рядом школа, детский садик. Недалеко Северная Набережная - отличное место для прогулок. - Документы готовы. Квартира без долгов и детских долей.
Расположение