Продажа 3-комнатной квартиры 74 м², 3 / 9 этаж
Россия, Киров, улица Ленина, 16 Центр

28.09.2020

3 350 000,0 ₽
45 270 ₽ за м²
Свободная продажа
Описание
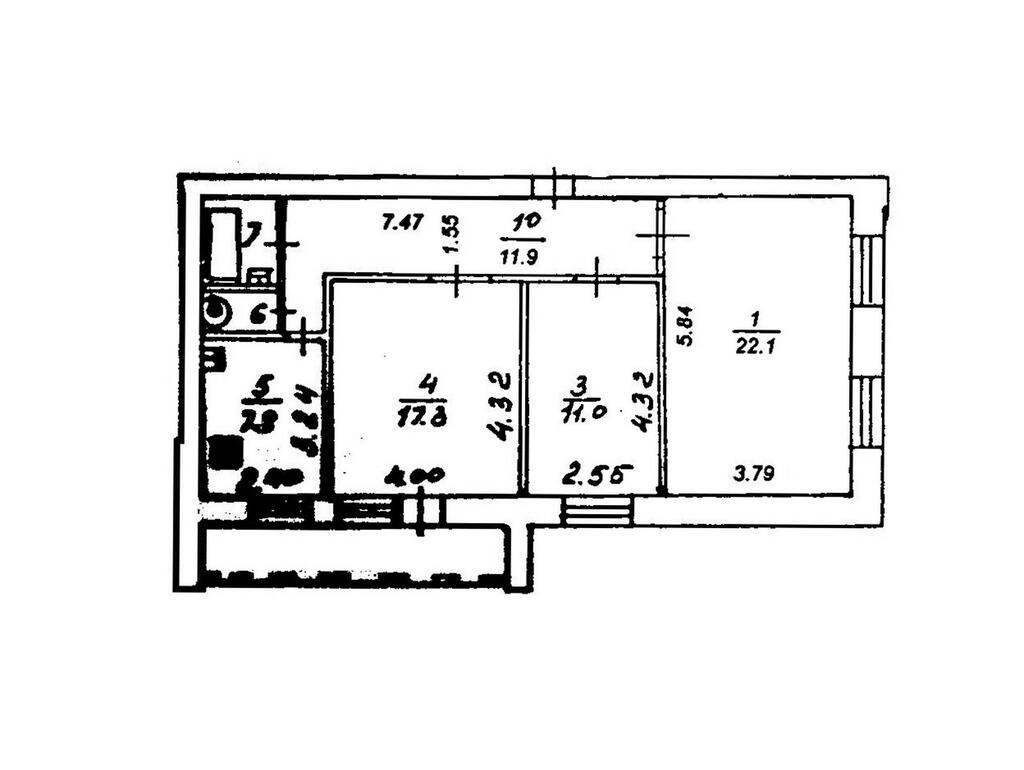
Общая площадь — 74 м²
Площадь кухни — 8 м²
Площадь жилая — 50 м²
Комнат — 3
Этаж — 3 из 9
Вид из окон — На улицу
Жилой фонд
О доме
Год постройки — 1993
кирпичный
Парковка — Открытая
Продается просторная квартира с ремонтом и мебелью в центре города недалеко от Набережной Грина. - Кирпичный дом 1993 года постройки. - Отличная планировка: три комнаты 21+18+11 м2, кухня, лоджия 6 метров, просторная светлая гостиная с двумя окнами, свой тамбур. - Сделан ремонт: пластиковые окна, на лоджии пластиковый стеклопакет, современный кухонный гарнитур со встроенной техникой, санузел в кафеле. Оставляем мебель и бытовую технику. - Закрытый двор со шлагбаумом. - Рядом проходят улицы Казанская, Советская, Розы Люксембург. Поблизости КЭПЛ, гимназия №28, Физмат лицей. - Квартира без долгов, взрослые собственники. - Чистая продажа. - Возможна ипотека.
Расположение