Продажа 3-комнатной квартиры 94 м², 5 / 5 этаж
Россия, Киров, улица Ленина, 89к1 Центр

08.03.2021

4 530 000,0 ₽
48 191 ₽ за м²
Свободная продажа
Описание
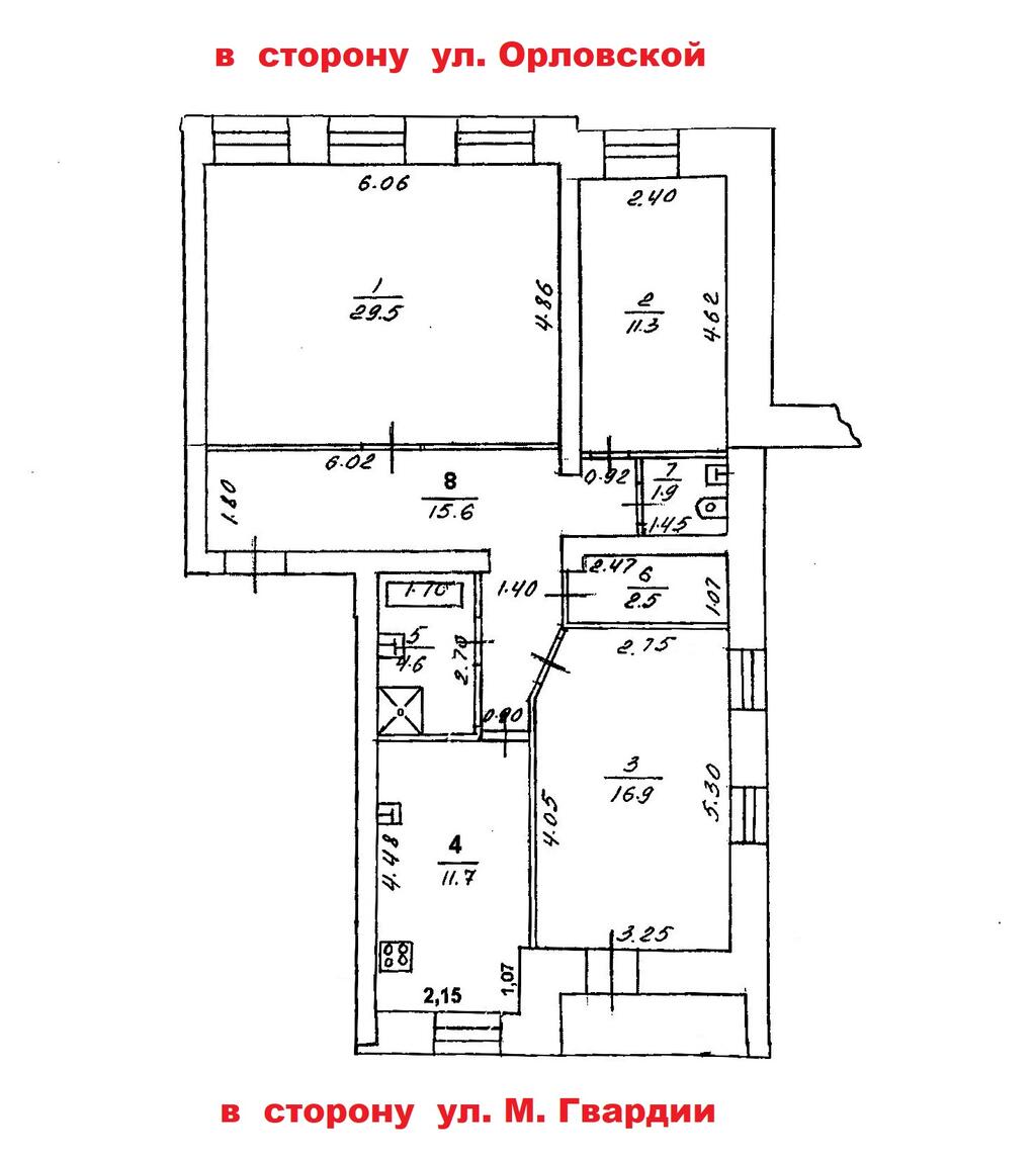
Общая площадь — 94 м²
Площадь кухни — 117 м²
Площадь жилая — 577 м²
Комнат — 3
Этаж — 5 из 5
Ремонт — Евро
Санузел — Не указано
Вид из окон — Во двор
Лоджия
Жилой фонд
О доме
кирпичный
Парковка — Открытая
Продается трехкомнатная квартира индивидуальной планировки в центре города недалеко от филармонии. - Дом из полноценного кирпича 1994 года постройки, расположен во дворе. - Отличная планировка: большая кухня, три отдельные комнаты: 29,5 + 16,9 + 11,3, раздельный санузел, гардеробная. - Окна во двор, тихо. - У дома парковка, двор отгорожен шлагбаумом. - Квартира с ремонтом, можно заехать и жить: ламинат, пластиковые окна, новая плитка в санузле. - В санузле ванная и душевая кабина. Остается водонагреватель. - Документы готовы. - Чистая продажа. - Возможна ипотека.
Расположение