Продажа 2-комнатной квартиры 70 м², 14 / 16 этаж
Россия, Киров, Московская улица, 83 Центр

25.05.2022

5 630 000,0 ₽
80 429 ₽ за м²
Свободная продажа
Описание
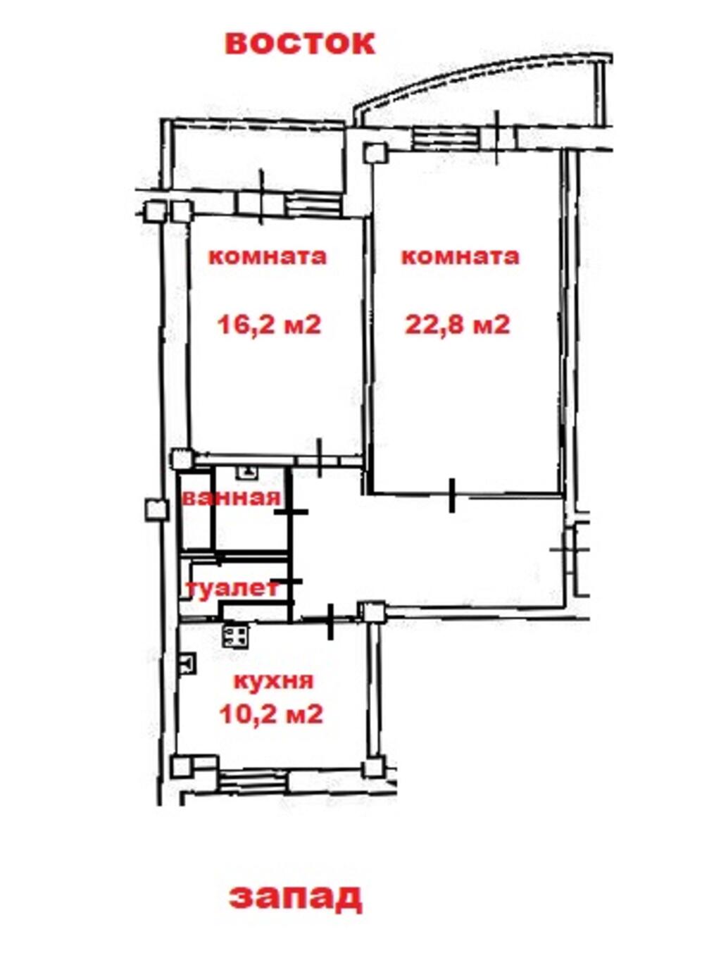
Общая площадь — 70 м²
Площадь кухни — 102 м²
Площадь жилая — 694 м²
Комнат — 2
Этаж — 14 из 16
Ремонт — Косметический
Санузел — Не указано
Вид из окон — Во двор
Лоджия
Жилой фонд
О доме
Год постройки — 2007
кирпич-монолит
Парковка — Открытая
Продается просторная видовая 2-комнатная квартира в новом доме в центре. - Шикарная планировка: распашонка, две изолированные комнаты 22,8 + 16,2 кв.м., большая кухня 10,2 кв.м., раздельный санузел, лоджия и балкон. - Окна на восток и запад. Красивый вид на город с высоты птичьего полета. - Сделан ремонт: пол из пробки + ламинат + камень-полимер на кухне. Ванная в плитке. Оставляем всё, что на фото: новый кухонный гарнитур с духовкой Bosch, электрической варочной поверхностью Gorenje, вытяжка Cata, посудомойка Bosch. Шкаф в прихожей, водонагреватель, спальный гарнитур. - Квартира готова к проживанию, можно заехать и жить! - Около дома огромная автопарковка. - Безопасный двор. - недалеко Театральная площадь, рядом проходят Октябрьский проспект, улицы Преображенская, Горького. - Документы готовы. - Квартира без долгов и детей.
Расположение